En ny servicebyggnad uppförs på Tasträsk badstrand
09.05.2023 kl. 09:19
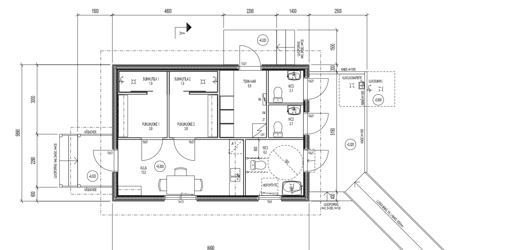
En ny servicebyggnad uppförs på badstrandsområdet i Tasträsk. Arbetet börjar med byggandet av en räddningsväg, varefter servicebyggnaden uppförs. Arbetet inleds i maj 2023 och blir färdigt före utgången av 2023. Servicebyggnaden kommer att ha allmänna utomhusduschar och toaletter samt omklädningshytter för vinterbadare.
Gånglederna vid badstranden i Tasträsk är i begränsad användning sommaren 2023. Vänligen observera att gångleden till stranden är smalare än normalt och går bredvid staketen till en byggarbetsplats.