Egnahemshustomter | Norrängen
Denna sida innehåller information om det första säljningen som hölls våren 2022. Information om tomter som ska säljas våren 2023 och anbudstävlingen som ordnas 17.4. – 15.5.2023 finns på följande länk:
Detaljplanen för Norrängen (NG9) blev färdig år 2020. Norrängen i Nickby ligger i det populära området Nickby gård som utvecklas kontinuerligt. Bra friluftsleder finns alldeles invid. Sammanlagt 28 egnahemstomter har planerats i området. De säljs i two omgångar under åren 2022–2023.
Information om lottdragningen vår 2022
Anmälningen till tomtlotteriet i vår 2022 är slut. Lottdragningen organiseras 11.5.2022 kl. 18 i Nickby i Topeliussalen, Norra Skolvägen 2. Vid lottdragningen kommer deltagarna i lotteriet att välja tomt i lottordningen. Du måste närvara vid dragningen eller ge en annan person fullmakt att representera dig.
Läs noga igenom tomternas försäljningsmaterial på dessa sidor samt detaljplan och byggsättsanvisningar som finns längst ner på sidan.
Att observera om tomterna
Bindande byggsättsanvisningar har utarbetats för området. Bekanta dig gärna med dem. Byggsättsanvisningarna innehåller kvartersspecifika riktlinjer för byggnaders färg och utseende. En länk till detaljplanen och byggsättsanvisningarna finns längst nere på denna sida. På detaljplanesidan finns också en byggbarhetsutredning som utarbetats som grund för planarbetet. Innan byggarbetet inleds ska köparen låta göra en mer detaljerad markundersökning på sin tomt.
I planen anges det högsta tillåtna antalet våningar på tomterna. En byggnad med färre våningar får byggas på tomten, men i så fall måste köparen ta hänsyn till att byggnaden endast kan placeras på den byggplats som anges i planen och att högst 17 % av tomtens helhetsyta får användas för byggandet. Det innebär att köparen inte kan utnyttja byggrätten på tomten i sin helhet om hen bygger ett envåningshus.
Tomterna 5, 9 och 10 i kvarter 1538 ligger på en relativt brant sluttning, vilket ökar byggkostnaderna och eventuellt förhindrar användningen av huspaketlösningar.
I detaljplanen anvisas byggnaderna ställvis mindre än 8 meter från varandra, vilket innebär att brandbestämmelserna ska beaktas.
Beroende på tomten leds regnvattnet antingen till en dagvattenledning eller ett dike.
Intill området låg tidigare en skjutbana. För att säkerställa att marken på tomterna är ren har jordprover tagits från tomterna i samband med gatubyggandet. Dessa prover har inte visat koncentrationer av tungmetaller som överskrider gränsvärdena.
Tomterna säljs i det skick de befinner sig i vid försäljningstillfället. Kommunen avlägsnar inte trädbeståndet innan tomterna säljs.
Försäljning av tomterna
Tomterna säljs till ett fast pris och lottas ut bland intresserade. I vår 2022 lottar man ut tomterna i kvarteren 1538 och 1541. Vid lottdragningen kommer deltagarna i lotteriet att välja tomt i lottordningen och därför måste du närvara vid dragningen eller ge en annan person fullmakt att representera dig.
Tomterna överlåts till myndiga privatpersoner som inte har köpt eller hyrt en bostadstomt av Sibbo kommun under de senaste 5 åren.Tomtpriserna varierar mellan 76 och 79 euro per m2 mark, beroende på var tomten ligger i kvarteret. Dessutom tillkommer en styckningsavgift på 1 090 euro per tomt. Reserveringsavgiften för tomterna är 500 euro och den dras av från den slutliga köpesumman. Köpebrevet måste undertecknas inom sex månader från det att beslutet om försäljning av tomten har vunnit laga kraft.
Besök på området
Byggandet av kommunaltekniken pågår fortfarande och byggnadsfordon passerar genom området. Därför ska ni vara försiktiga när ni rör er i området. Det är inte tillåtet att använda gatorna som är under byggnad. Vi rekommenderar att besök planeras efter kl. 17. Det är inte tillåtet att gå in på det markerade byggarbetsplatsområdet.

Presentationsmaterial från tomtinfo 21.3.2022 och riktgivande kostnadsberäkning
Tomtförsäljningens informationsmaterial på infotillfället 21.3.2022
Sammandrag av frågorna på infotillfället 21.3.2022 (på finska)
Information om kommunalteknik (infotillfället 21.3.2022, på finska)
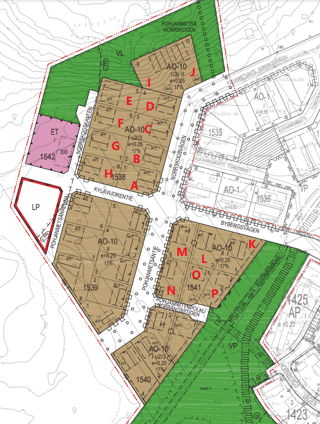
Tomternas storlek och pris

Rålängderna
| Nummer på kartan | Tomt | Area, m2 | €/m2 | Pris €/tomt | Obs! |
| A | 1538 1 | 752 | 76 | 57 152 | |
| B | 1538 2 | 770 | 76 | 58 520 | |
| C | 1538 3 | 770 | 76 | 58 520 | |
| D | 1538 4 | 770 | 76 | 58 520 | |
| E | 1538 5 | 770 | 79 | 60 830 | Tomten ligger i brant sluttning |
| F | 1538 6 | 770 | 76 | 58 520 | |
| G | 1538 7 | 770 | 76 | 58 520 | |
| H | 1538 8 | 766 | 76 | 58 216 | |
| I | 1538 9 | 1164 | 79 | 91 956 | Tomten ligger i brant sluttning |
| J | 1538 10 | 858 | 79 | 67 782 | Tomten ligger i brant sluttning |
| K | 1541 1 | 936 | 79 | 73 944 | |
| L | 1541 2 | 905 | 76 | 68 780 | Ledningsservitut på gränsen |
| M | 1541 3 | 749 | 76 | 56 924 | Ledningsservitut på gränsen |
| N | 1541 4 | 769 | 76 | 58 444 | Ledningsservitut på gränsen |
| O | 1541 5 | 630 | 76 | 47 880 | Ledningsservitut på gränsen |
| P | 1541 6 | 658 | 79 | 51 982 |
Förfrågningar
Information om tomtförsäljning:
Markanvändningsingenjör Maija Lääti
+358 50 536 1408
fornamn.efternamn@sibbo.fi
Information om byggandet:
Lovarkitekt Tytti Mäntyoja, fornamn.efternamn@sibbo.fi