Yritystontit | Almankuja 6

Tonttikartta Almankuja 6 pdf-muodossa: Tonttikartta Almankuja 6
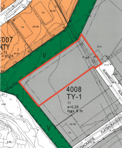
Osoite: Almankuja 6
Tontilla edellytetään öljynerotuskaivojen rakentamista tontille piha-alueen sadevesien käsittelyyn
| Pinta-ala: | 7087 m2 |
| Rakennusoikeus: | 1771 m2 |
| Kaavamerkintä: | TY-1 Ympäristöhäiriötä aiheuttamattomien teollisuus- ja varastorakennusten korttelialue |
| Kauppatapa: | Myynti/vuokraus |
| Myyntihinta: | 141 680 € (80 €/k-m2) |
| Muu lisätieto: | Alueelle voidaan rakentaa rakennuksia malua ja ilmansaasteita aiheuttamattomalle teollisuudelle. Enintään 10 % rakennuspaikasta saadaan käyttää avoimeen ulkovarastointiin.
Tontti on mahdollista myös vuokrata. Vuosivuokra on 8 500,80 € (6 % myyntihinnasta) Liittyminen vesi- viemäri- ja hulevesiverkostoon tarkistettava suunnittelun alkuvaiheessa. |
Alueen tiedot
Vaahteramäen yrityspuisto sijaitsee lähellä Nikkilän taajamaa, taajamasta luoteeseen. Martinkyläntien varrella sijaitsevasta yrityspuistosta ajaa nopeasti Martinkyläntietä pitkin Keravalle tai Nikkilään.
Vaahteramäki soveltuu hyvin pienyrittäjille ja haittaa aiheuttamattomaan tuotannolliseen toimintaan. Joustava tonttijako mahdollistaa erinomaiset puitteet esimerkiksi myynnille ja valmistukselle sekä korjaamotoiminnalle.
Tonttien varaaminen
Tontit varataan vapaamuotoisella hakemuksella, jonka voitte lähettää sähköpostitse tonttipäällikölle ja maankäyttöasiantuntijalle.
Hakemuksesta tulee käydä ilmi seuraavat tiedot:
- varattava tontti
- tiedot yrityksestä ja yrityksen avainluvuista
- alustava (sanallinen) suunnitelma varattavalle tontille toteutettavasta hankkeesta
- tiedot hankkeen osapuolista
- alustava hankkeen aikataulu
Käsittelemme tonttivaraushakemukset ja hyväksytyllä tonttivaraushakemuksella saa tonttiin 3 kuukauden mittaisen suullisen suunnitteluvarauksen.
Tiedustelut ja varaukset:
Tonttipäällikkö Juhani Lankinen
juhani.lankinen@sipoo.fi
+358 40 579 2967
Maankäyttöasiantuntija Harri Kumpulainen
harri.kumpulainen@sipoo.fi
+358 40 615 9771